Property Details
  • Property Refrence: 41798
  • Agent:
  • Property Type: Apartment
  • Property status: Sales
  • Property Price: € 265,000
  • Bedrooms: 2
  • Bathrooms: 2
  • Built: N/A
  • Country: Cyprus
  • Region: Nicosia
  • City: Egkomi
Description

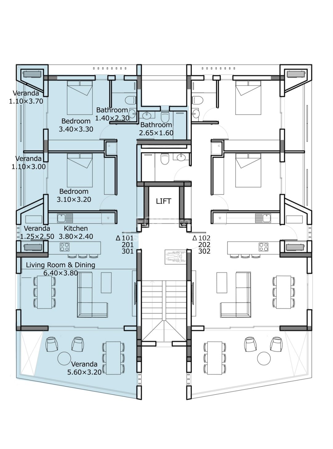
Description A modern, energy-efficient 2-bedroom apartment in one of Egkomi’s most sought-after residential areas. Designed with comfort, functionality, and long-term value in mind, this property is ideal for both homebuyers and investors looking for strong rental demand near the University of Nicosia. Location • Prime Egkomi location, just: – 3 minutes from the University of Nicosia (high rental demand) – 4 minutes from the Mall of Egkomi – 6 minutes from Alpha Mega supermarket • Quick and easy access to the Nicosia–Limassol highway and city centre • Quiet, residential neighborhood offering both convenience and peace of mind • Walking distance or short drive to cafes, shops, services, and everyday essentials External Features • Contemporary 3-storey boutique building with only 6 apartments – low density living for added privacy • Construction starts May 2025 | Delivery: March 2027 • Second floor apartment – better views, more privacy, and natural light • Includes covered parking and private storage room • Modern architectural design with clean lines and high-end finishes Internal Characteristics • Internal area: 88 sqm + 18 sqm covered veranda • Bright open-plan layout combining living, dining, and kitchen areas – ideal for modern living • Large veranda extending the living space outdoors – perfect for relaxing or entertaining Bedrooms: • Master bedroom with en-suite shower/WC + private veranda (4 sqm) • Second bedroom with its own covered veranda Bathrooms: • Main bathroom with shower – practical and well-designed for guests or family use Advantages – Special Features • Energy-efficient design with external thermal insulation • 4kW photovoltaic system per apartment – significantly reduced electricity costs • Solar water heating system • High-quality ceramic flooring throughout • Custom-made wardrobes for smart storage solutions • Double-glazed aluminium windows & doors for insulation and security • Full A/C provisions (hot & cold) in all areas • Pressurized water system for strong and consistent water flow Why This Property Stands Out • Ideal for investment – strong rental potential due to proximity to the University • Perfect for own residence – quiet area with everything nearby • Small building = higher long-term value and exclusivity • Energy-efficient features = lower monthly expenses Final Note A rare opportunity to secure a modern apartment in a high-demand area at an early stage—offering both capital appreciation potential and strong future returns. When compared with similar developments in the area, this project stands out as a well-priced option without compromising on quality or specifications.